SPREE RH-150 SD

Modulares Bauen – Kosteneffizienz & Sicherheit

RH 150 SD Garten

SPREE RH-150 SD

Beschreibung

Modulares Bauen – Kosteneffizienz & Sicherheit

Unter Berücksichtigung von Größe und Format des Grundstücks und den behördlichen Auflagen lässt sich dieses Haus von einem Einzel- über ein Doppel- bis zu einem Reihenhaus mit Hinzunahme von Mittelhäusern beliebig erweitern. Somit können Familien mit mehreren Generationen oder Freunde & Bekannte alle ein eigenes Dach bekommen und in Bezug auf Bau-, Baunebenkosten und Grundstückskauf viel Geld sparen.  Die KFW-Bank fördert energetische und nachhaltige Neubauten zusätzlich mit bis zu 150.000€ pro Wohneinheit mit einem sehr attraktiven Zinssatz. Somit profitiert jeder nicht nur im Hinblick auf eine darstellbare Finanzierung, sondern schafft sich ein Heim, welches optimal für die Zukunft ausgerichtet ist.  

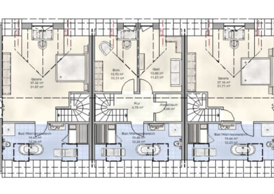
Dass modulares Bauen nicht einher gehen muss, sich mit einem festgesetzten System zufrieden zu geben, möchten wir Ihnen gerne mit dem folgenden Beispiel näher bringen.

Der kompakt geschnittene Grundriss bietet trotz geringer Hausbreite im Erdgeschoss genug Raum für den HWR, ein Gäste-WC mit Dusche und eine Garderobe, die Diele hält weitere Abstellmöglichkeiten bereit. Frei nach Bauherrenwunsch erschließt sich darüber der offene Wohn- und Essbereich mit Kochnische durch einen direkten Zugang, oder abgetrennt durch eine Tür.

Das Obergeschoss hält drei Schlafzimmer und das Hauptbadezimmer bereit. Das Dachgeschoss bietet noch mehr Raum bereit für Ihre individuellen Wünsche. Die flexible und modulare Grundrissgestaltung ermöglicht auch für Mittelreihenhäuser eine angenehme Belichtung aller Räume durch ausreichend Fenster. Das jeder Grundriss anders dargestellt wurde zeigt Ihnen, wie variable diese Häuser gestaltet werden können.  

Ihre Sicherheitsausstattung im SpreeHaus®:

• Abschließbare Fenstergriffe
• Pilzkopf-Fensterverriegelungen
• Dreifach Haustürverriegelung, Schwenkriegelschloß, Sicherheitsschließzylinder
• Rauchmelder in allen Wohn- und Schlafräumen sowie Fluren

Für ihre Sicherheit in unserem Verbraucherbauvertrag:

• Gemeinsames Hausrecht, ständiger Baustellenzugang während der
  gesamten Bauzeit
• Festangestellte Bauleiter
• Festpreisgarantie
• Fertigstellungsbürgschaft
• Zahlungsplan nach Bautenstand
• Zahlung der Schlussrate von 10% der Gesamtsumme erst nach Abnahme!
• Gewährleistung 5 Jahre gemäß BGB-Vertrag

Unser Leistungsstandard:

• Außenwände der Vollgeschosse werden einschalig in 365 mm Stärke
  aus Porenbetonsteinen oder Ziegel gemauert
• Fußbodenheizung im Erd- und Ober-/ Dachgeschoss mit
  Einzelraumthermostatsteuerung
• Moderne Luft-Wasser-Wärmepumpentechnik
• Innenfensterbänke aus Marmor und Außenfensterbänke aus Granit
• Boden- u. Wandfliesen im Wert von 40 €/m² in Bad- und WC

Ihre Betriebskosten im Blick:

• Zertifizierte Gebäudehülle durch Blower-Door Messung / Luftdichteprüfung,
• Außenwände mit guten Wärmedämmeigenschaften
• Dreifach verglaste Thermofenster
• Regenerative Luft-Wasser-Wärmepumpenheiztechnik
• KfW-55 Effizienzhausstandard kann für jedes Haus gewählt werden*

Zusätzliche Ausstattungsoptionen -wenn gekauft-:

• Lüftungstechnik mit Wärmerückgewinnung
• Klimaanlage für Schlaf- und Kinderzimmer
• Photovoltaikanlage oder PV-Vorrüstung

*) bei verändertem Außenwandaufbau (zweischalig mit Wärmedämmverbundsystem)