SPREE SH-303 Penthaus

Wohnen in seiner exklusivsten Form –Das Spree-Penthaus

36 2021 Nachtszene

SPREE SH-303

Beschreibung

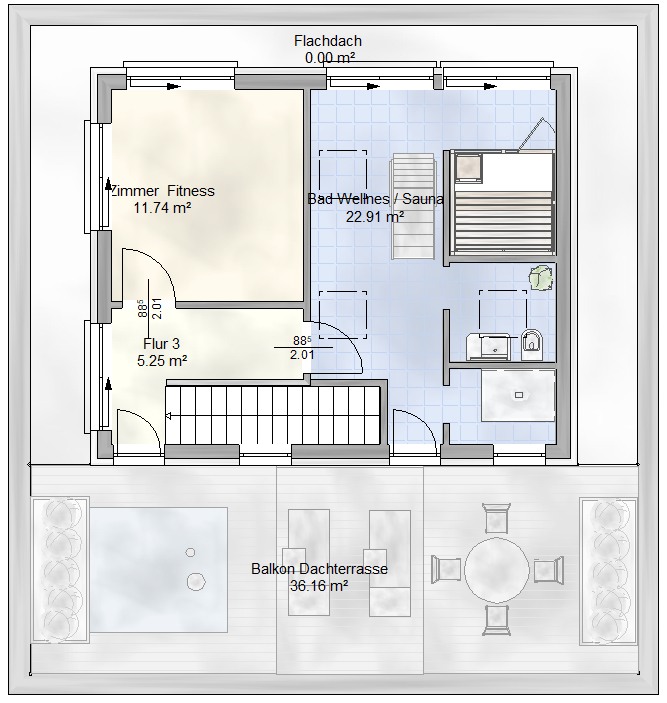
Ins Spree-Penthaus haben wir unsere ganze Leidenschaft für Traumhäuser gesteckt. Die exklusive Sonderausstattung auf zwei Vollgeschossen zzgl. Staffelgeschoss, die umlaufende Dachterrasse und die vielen Designdetails machen das Spree-Penthaus zu einem Traumhaus, dass höchsten Ansprüchen gerecht wird und das auf 303 m² Wohnnutzfläche.

Ihre Sicherheitsausstattung im SpreeHaus®:

• Abschließbare Fenstergriffe
• Pilzkopf-Fensterverriegelungen
• Dreifach Haustürverriegelung, Schwenkriegelschloß, Sicherheitsschließzylinder
• Rauchmelder in allen Wohn- und Schlafräumen sowie Fluren

Für ihre Sicherheit in unserem Verbraucherbauvertrag:

• Gemeinsames Hausrecht, ständiger Baustellenzugang während der
  gesamten Bauzeit
• Festangestellte Bauleiter
• Festpreisgarantie
• Fertigstellungsbürgschaft
• Zahlungsplan nach Bautenstand
• Zahlung der Schlussrate von 10% der Gesamtsumme erst nach Abnahme!
• Gewährleistung 5 Jahre gemäß BGB-Vertrag

Unser Leistungsstandard:

• Außenwände der Vollgeschosse werden einschalig in 365 mm Stärke
  aus Porenbetonsteinen oder Ziegel gemauert
• Fußbodenheizung im Erd- und Ober-/ Dachgeschoss mit
  Einzelraumthermostatsteuerung
• Moderne Luft-Wasser-Wärmepumpentechnik
• Innenfensterbänke aus Marmor und Außenfensterbänke aus Granit
• Boden- u. Wandfliesen im Wert von 40 €/m² in Bad- und WC

Ihre Betriebskosten im Blick:

• Zertifizierte Gebäudehülle durch Blower-Door Messung / Luftdichteprüfung,
• Außenwände mit guten Wärmedämmeigenschaften
• Dreifach verglaste Thermofenster
• Regenerative Luft-Wasser-Wärmepumpenheiztechnik
• KfW-55 Effizienzhausstandard kann für jedes Haus gewählt werden*

Zusätzliche Ausstattungsoptionen -wenn gekauft-:

• Lüftungstechnik mit Wärmerückgewinnung
• Klimaanlage für Schlaf- und Kinderzimmer
• Photovoltaikanlage oder PV-Vorrüstung

*) bei verändertem Außenwandaufbau (zweischalig mit Wärmedämmverbundsystem)